Dr. Nix Beteiligungs-Gesellschaft mbH & Co. KG - Köln
Robert-Perthel Straße 4, 50739 Köln: Grundrisse Mietflächen
UG Nord
(192,69 m2) vermietet
UG Süd
(188,62 m2) vermietet
EG Nord
(180,66 m2) frei ab 1.9.2011
EG Süd
(189,82 m2) frei ab 30.6.2012
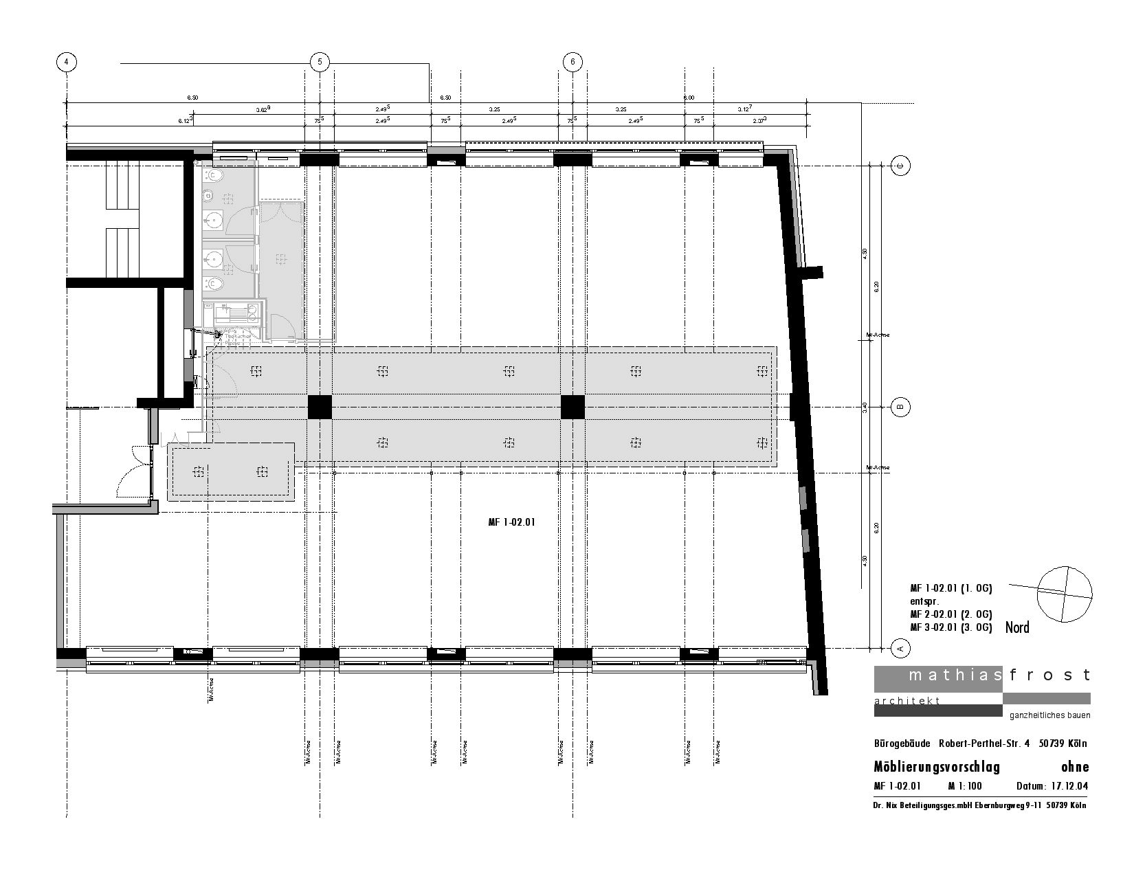
1.-3. OG Nord
(209,08 m2) 1.+2. OG vermietet , 3. OG frei ab sofort
1.-3. OG Süd
(203,79 m2) vermietet
4. OG Nord
(135,23 m2) vermietet
4. OG Süd
(175,64 m2) vermietet
Home
Kontakt
Impressum
27.07.2011